Highlights
About Me
Projects by Skill
Contact
Highlights
About Me
Projects by Skill
Contact
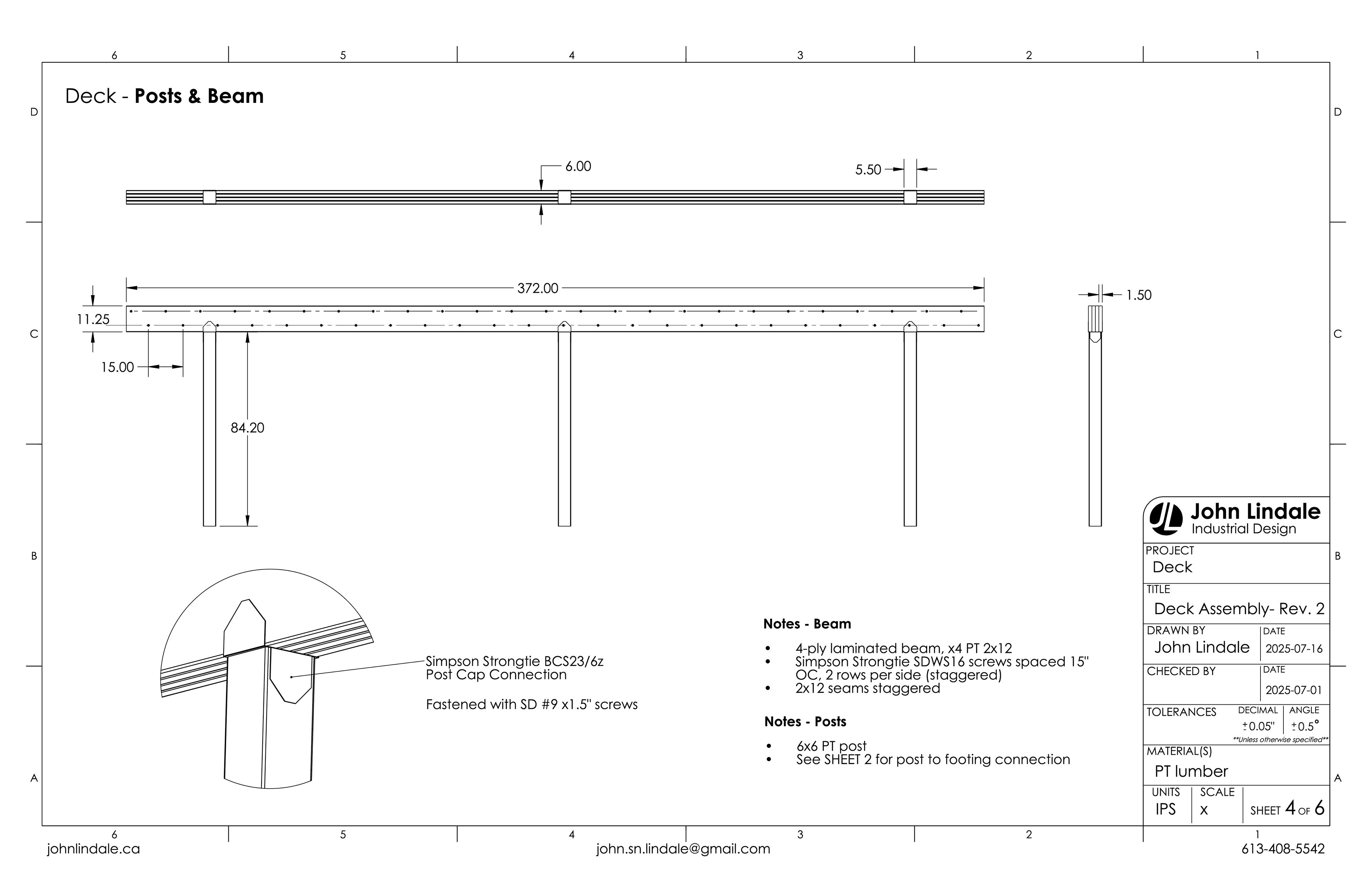
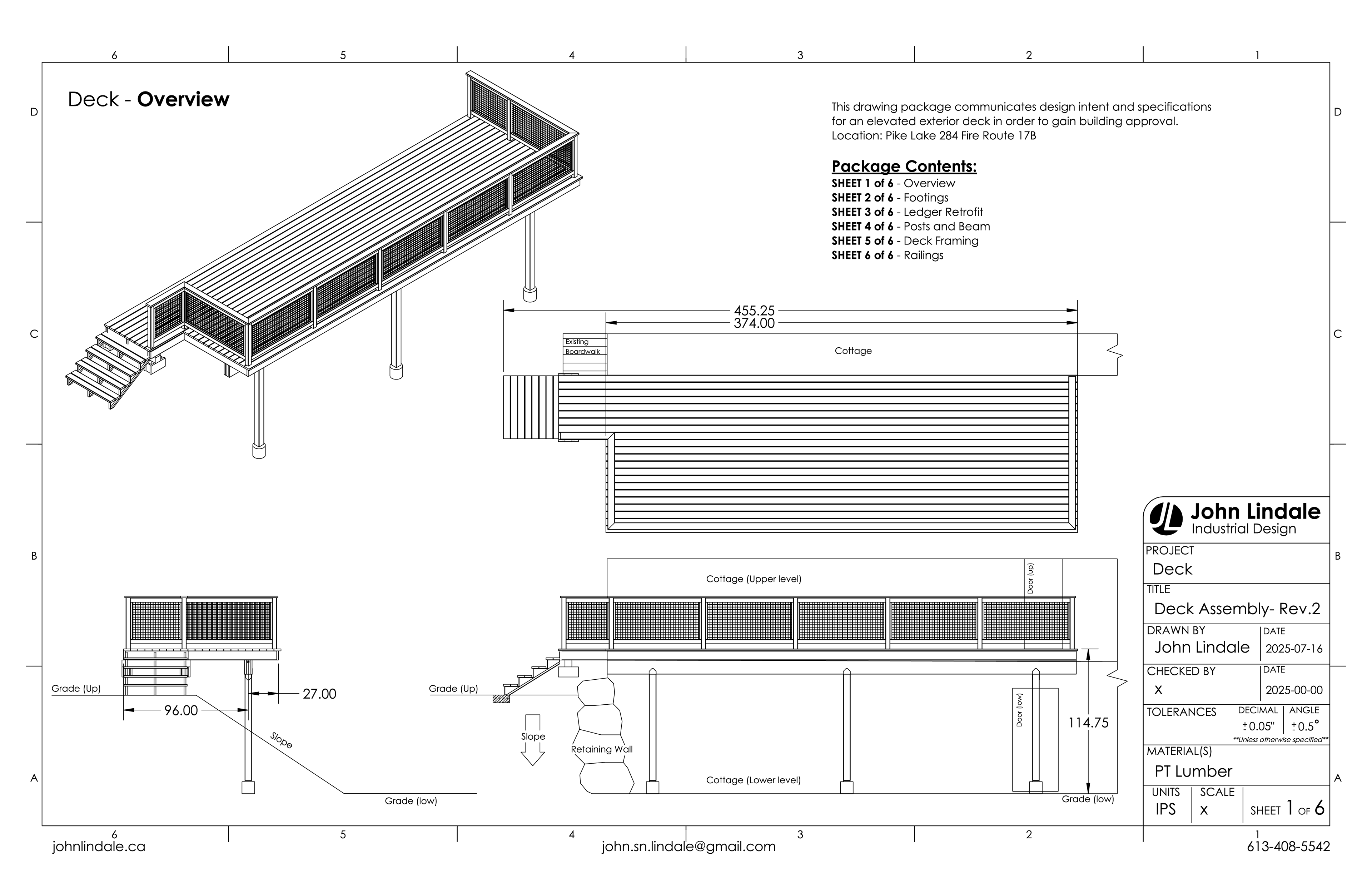
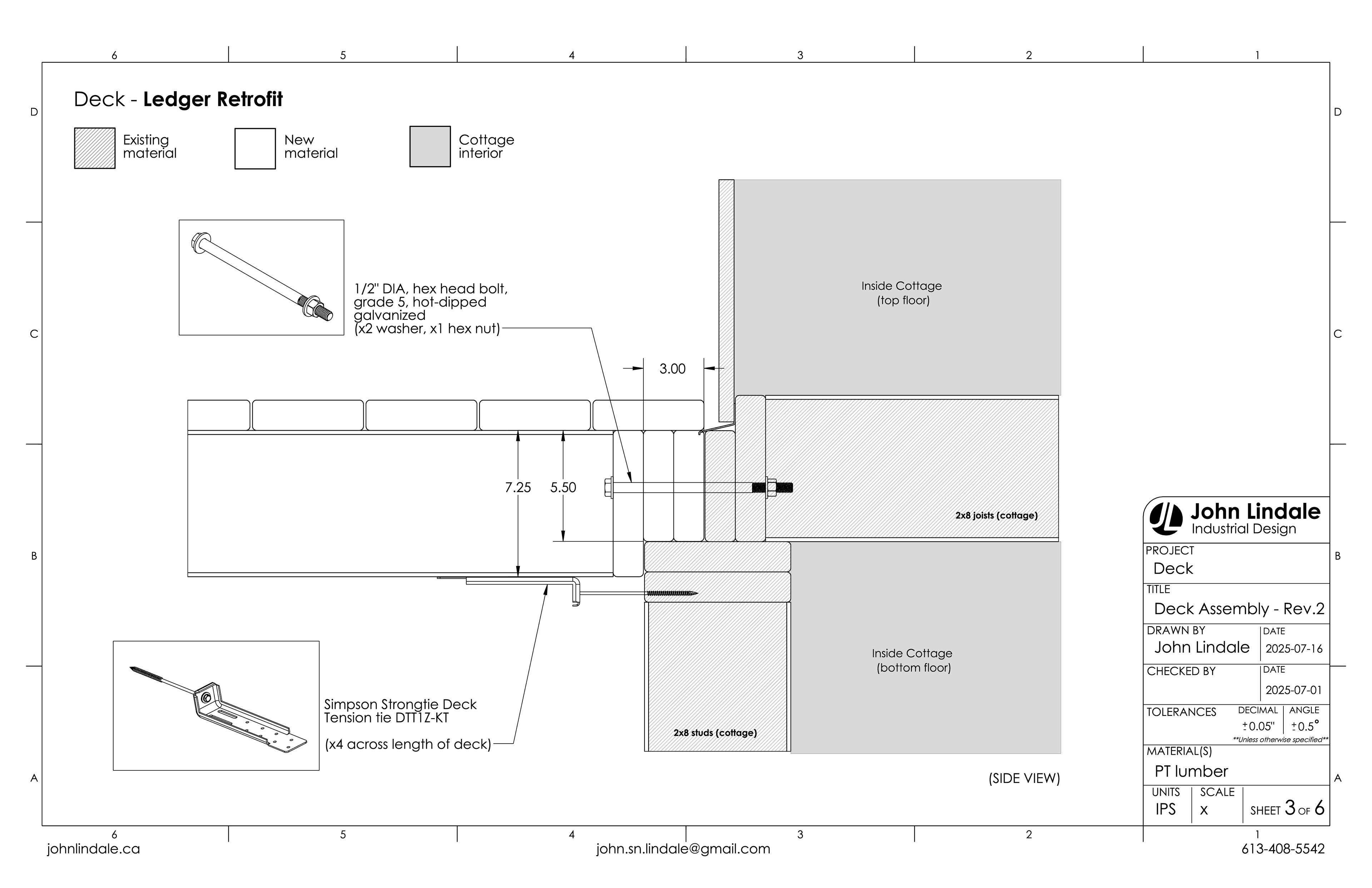
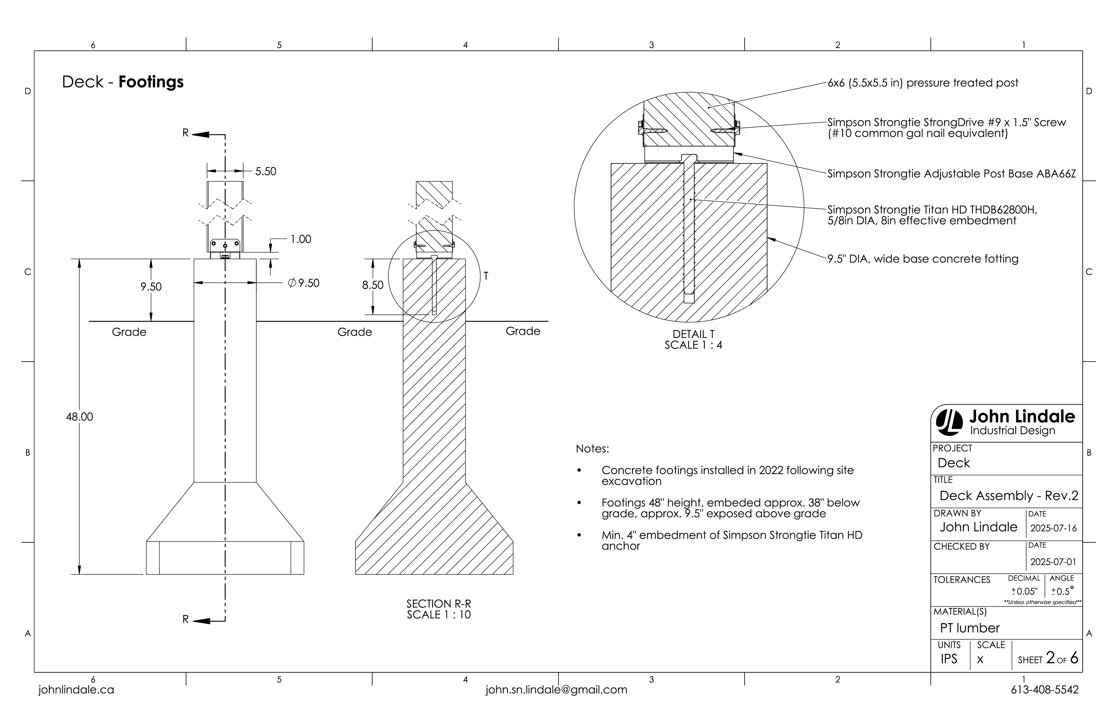
Elevated Deck
Back
↑
Back to Top